PROJECT HIGHLIGHT: Luxury Apartments at 42 Broad

PROJECT HIGHLIGHT:
Luxury Apartments at 42 Broad

All photos courtesy of 42 Broad Street.

42 Broad is a luxury apartment located in Mount Vernon, NY. It offers a nurturing and inclusive environment, with apartments providing a warm indoor experience, outdoor swimming pool, and indoor gym. There are 17 floors in total with various apartment configurations, including studios, one-bedroom, two-bedroom, three-bedroom, and more.

 

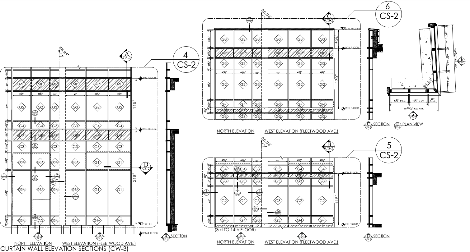
GAMCO sourced and custom-fabricated a number of curtain walls to complete the facade of the building.


Specifications & More

GAMCO sourced and fabricated numerous curtain walls for this project. Products were shipped fully-fabricated, ready for on-site installation.

  • Outside glazed/front set curtain wall w/ thermal break (polyamide pressure plates)
  • Dual finish capabilities
  • Optional steel reinforcement for improved structural support
  • Stick systems with concealed fasteners
  • Sightline: 2-1/2”
  • Base Depth: 7-1/2”

Performance

  • U-Value: As low as 0.30, according to glass
  • Acoustic: STC 35, OITC 30
  • Water Resistance: 20 psf (static and dynamic)
  • Air Infiltration: 0.06 CFM/ft² @ 6.24 psf (299 Pa)

 

Read the full specifications of what GAMCO fabricated here.

All GAMCO products in this project were installed by ROSS WINDOWS CORPORATION.